Accedi al sito
Non ricordi la password?
Recupera password
torna al login
Serve aiuto?
info@ghettaetamionarchitetti.it
0462 763464
GHETTA & TAMION
a r c h i t e t t i
Home
Chi siamo
AttivitÃ
Realizzazioni
Edilizia pubblica
Strutture ed infrastutture
Arredo urbano
Restauri
Edilizia privata
Risanamenti e ristrutturazioni
Strutture ricettivo-turistiche
Progetti in fase di realizzazione
Progetti
Edilizia pubblica
Edilizia privata
Concorsi
Majons immobiliare
Contatti
Dove siamo
Richiedi un appuntamento
Progetti in fase di realizzazione
Battistella - Vigo di Fassa (TN)
Trottner Luisa e Paola - Vigo di Fassa (TN)
Hotel Fontana - Valongia, Vigo di Fassa (TN)
Chiocchetti - Soraga (TN)
Rifugio capanna Piz - Fassa Huette
Trottner - Vigo di Fassa (TN)
Zanoner - loc. Pian, Campitello di Fassa (TN)
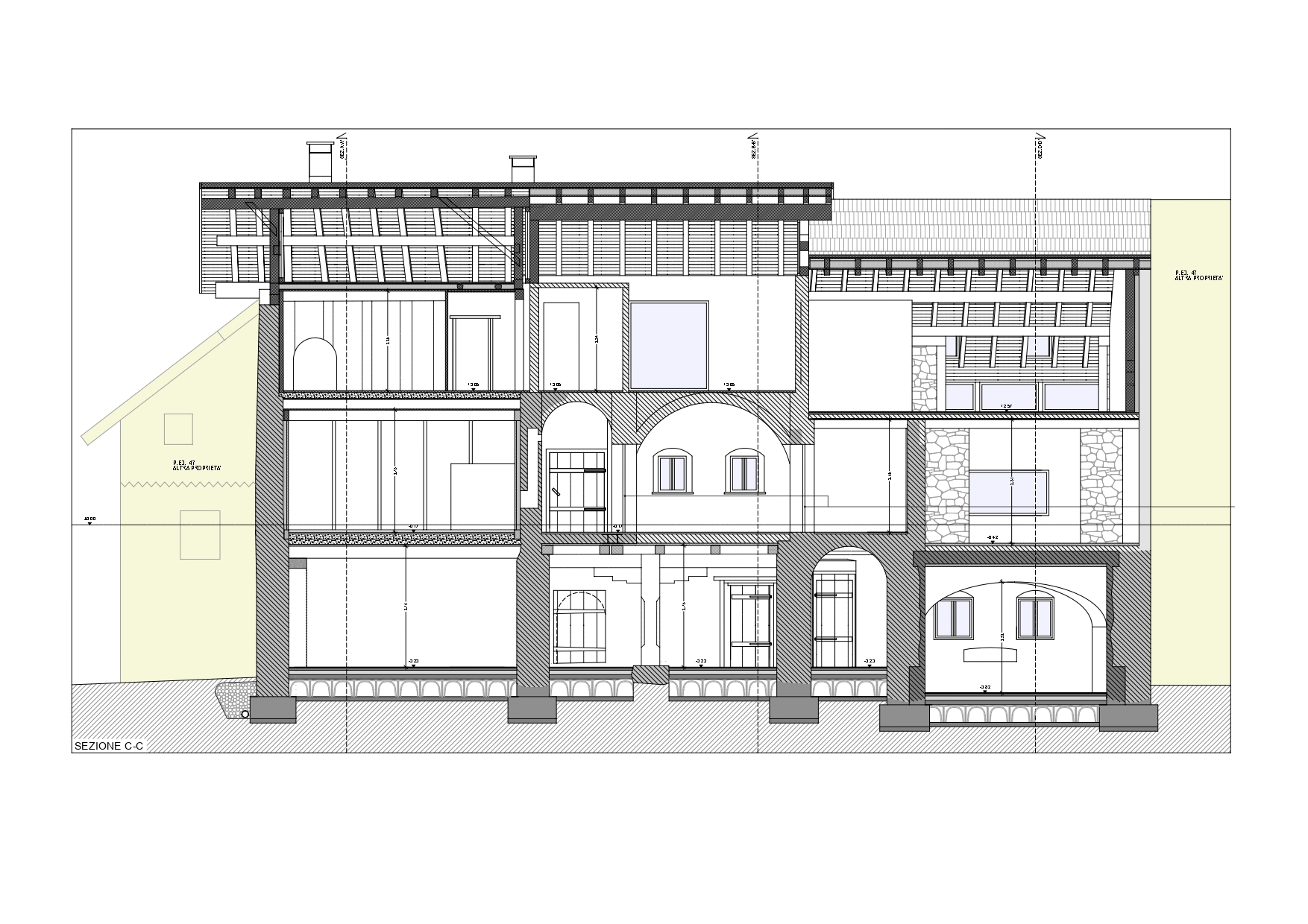
Ciasa Costazza - Mazzin di Fassa (TN)
Direzione dei lavori per il restauro di "Ciasa Costazza" di proprietà del Comune di Mazzin di Fassa.
Lavori in corso d'opera
Prospetto Nord-Est PROGETTO
Prospetto Sud-Est PROGETTO
Sezione B-B' PROGETTO
Sezione C-C' PROGETTO